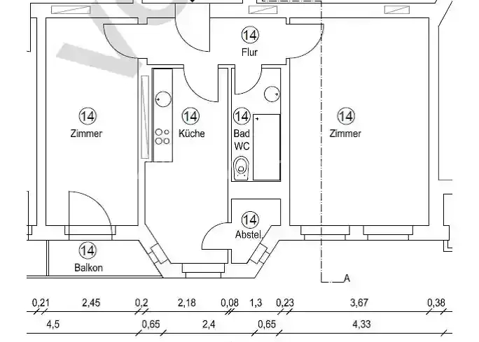
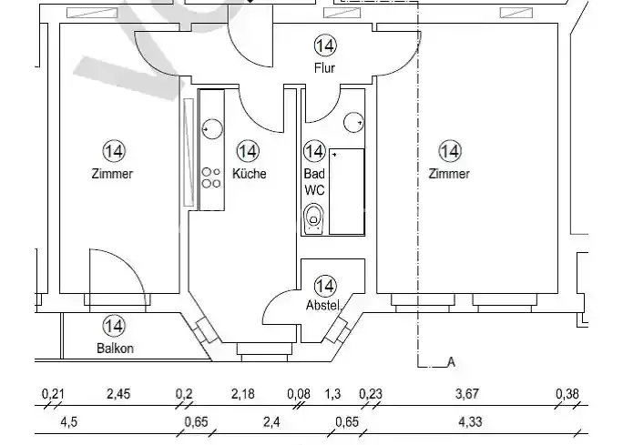
Die mittlere Wohnung im 3. Obergeschoss des Mehrfamilienhauses in Berlin Neukölln hat ihre zwei Zimmer nach Westen liegend. Im schmalen Zimmer wurde eine Schiebetür eingebaut, die mehr wertvollen Platz im hinteren Teil des Zimmers gibt. Das gut erhaltene Bad der 1980er Jahre bekam ein Facelift und strahlt im weiterhin modernem hellblau!