F14 Wohnung (2015)

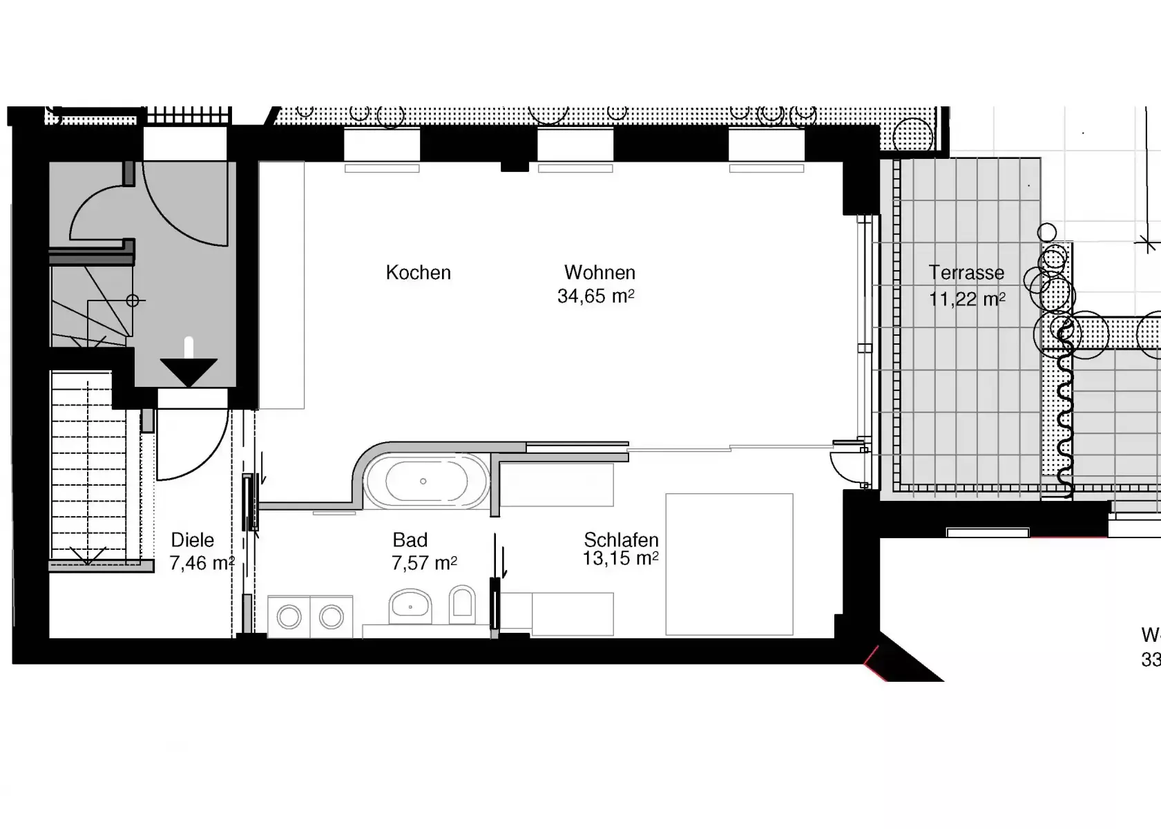
Das Erdgeschoss des Rückgebäudes auf dem Grundstück im Herzen des Münchner Schlachthofviertels wurde bisher als Lager eines Steinmetztes genutzt. Nun sollte dort neuer Wohnraum entstehen.
Ein rechteckiger Grundriss im Erdgeschoss mit Öffnungen nach Norden und Osten sollte einerseits ausreichend Licht in die Hinterhoflage einbringen aber auch die notwendige Privatsphäre für die Bewohner ermöglichen.
Das Bad wurde mit zwei Türen versehen. Ein direkter Zugang vom Schlafbereich war so möglich. Der offene Wohnraum mit Küchenzeile konnte durch eine raumhohe Schiebetür vom Schlafbereich abgetrennt werden. Die Wohnung mit Apartment Charakter lieferte so die gewünschten Eigenschaften für die Bewohner.