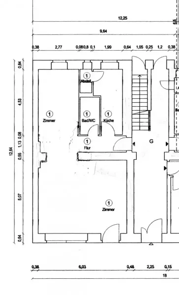
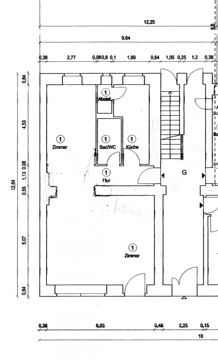
D104 Laden Neu (2017)

Der Laden des Mehrfamilienhauses im angesagten Kiez von Berlin Neukölln soll von Grund auf neu gestaltet werden. Ein hinterer Raum ist ursprünglich nur durch einen schmalen Durchgang erreichbar. Somit musste der Durchbruch vergrößert werden, was eine umfangreiche statische Absicherung des gesamten Hauses zur Folge hatte.
Zusätzliche Stütz-Fundamente mussten bis in den Keller neu errichtet werden. So konnten die Lasten des Hauses über den eingezogenen Doppel-T-Träger abgetragen werden und ein großzügiger Durchgang zum hinteren Teil des Ladens entstehen.
Die Raumhöhe von 3,8m und der restaurierte Stuck brachten ebenfalls Großzügigkeit in die Ladenräume. Der Boden wurde mit einem Vollholz-Fischgrät-Parkett belegt. Das große Schaufenster vollendet die neue Klarheit und Offenheit der Räume.