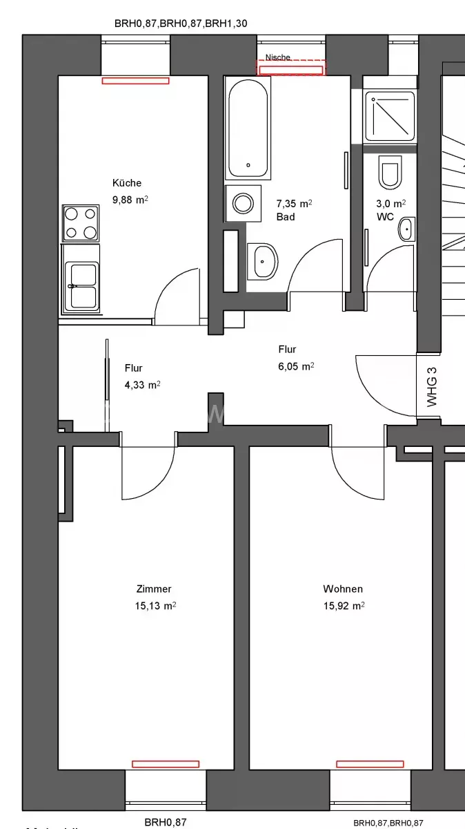
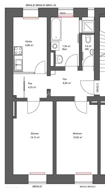
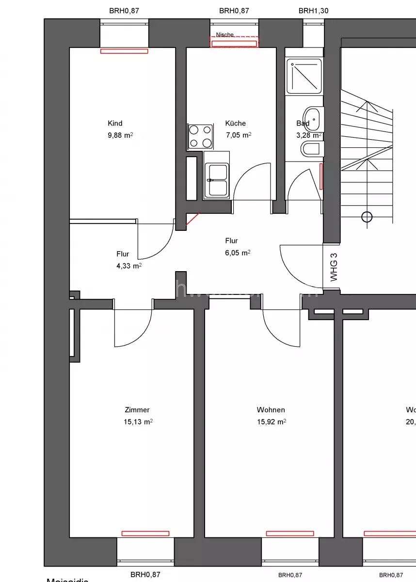
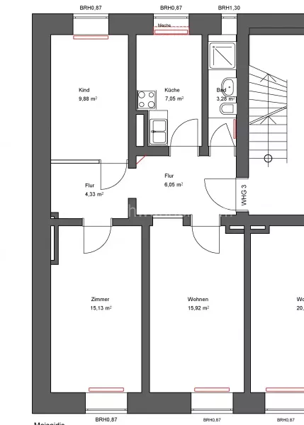
F14 Wohnung (2019)

Die Wohnung im Erdgeschoss im Vordergebäude des Mehrfamilienhauses im Münchner Schlachtholviertel hatte noch einen Grundriss aus dem Baujahr im späten 19. Jahrhundert. Somit war die Entwurfsaufgabe, dem Bad und auch der Küche mehr Raum zu geben, und den Grundriss zeitgemäß neu zu gestalten.
Das Bad wurde großzügig mit Wanne und einer Nischen-Dusche gestaltet und dem WC ein eigener Raum gegeben. Die hat Platz für alle Einrichtungen und einem Essbereich. Im großzügigem Flur wurde der hintere Teil mit einer Trockenbauwand abgeteilt und ein neuer Stauraum geschaffen.
Alle Zimmer wurden mit Vollholz-Parkett im Fischgrät-Muster ausgelegt. So entstand eine modern geschnittene Wohnung, die ihren Charakter des Altbaus nicht aufgegeben hat.