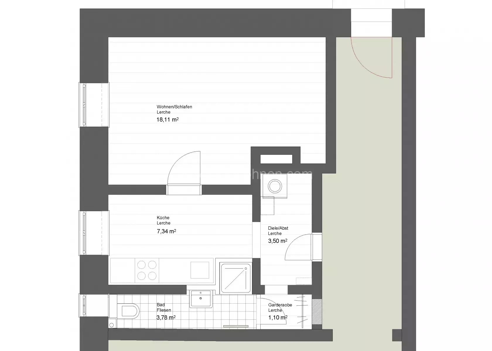
Die Ein-Zimmerwohnung im EG des Mehrfamilienhauses im Münchner Schlachthofviertel brauchte eine Auffrischung. Die Modernisierung inkl. des Badumbaus erfolgte bereits in 2012. Damals wurde das schmale Bad um eine Nische für die Dusche erweitert. In der angrenzenden Küche viel der Verlust dieser Nische nicht auf. Es war weiterhin ausreichend Platz für alle notwendigen Küchengeräte. Die Auffrischung galt im Wesentlichen den Wänden und den Böden. Die roten Fliesen im Bad sind weiterhin ein besonderer Akzent der Wohnung.