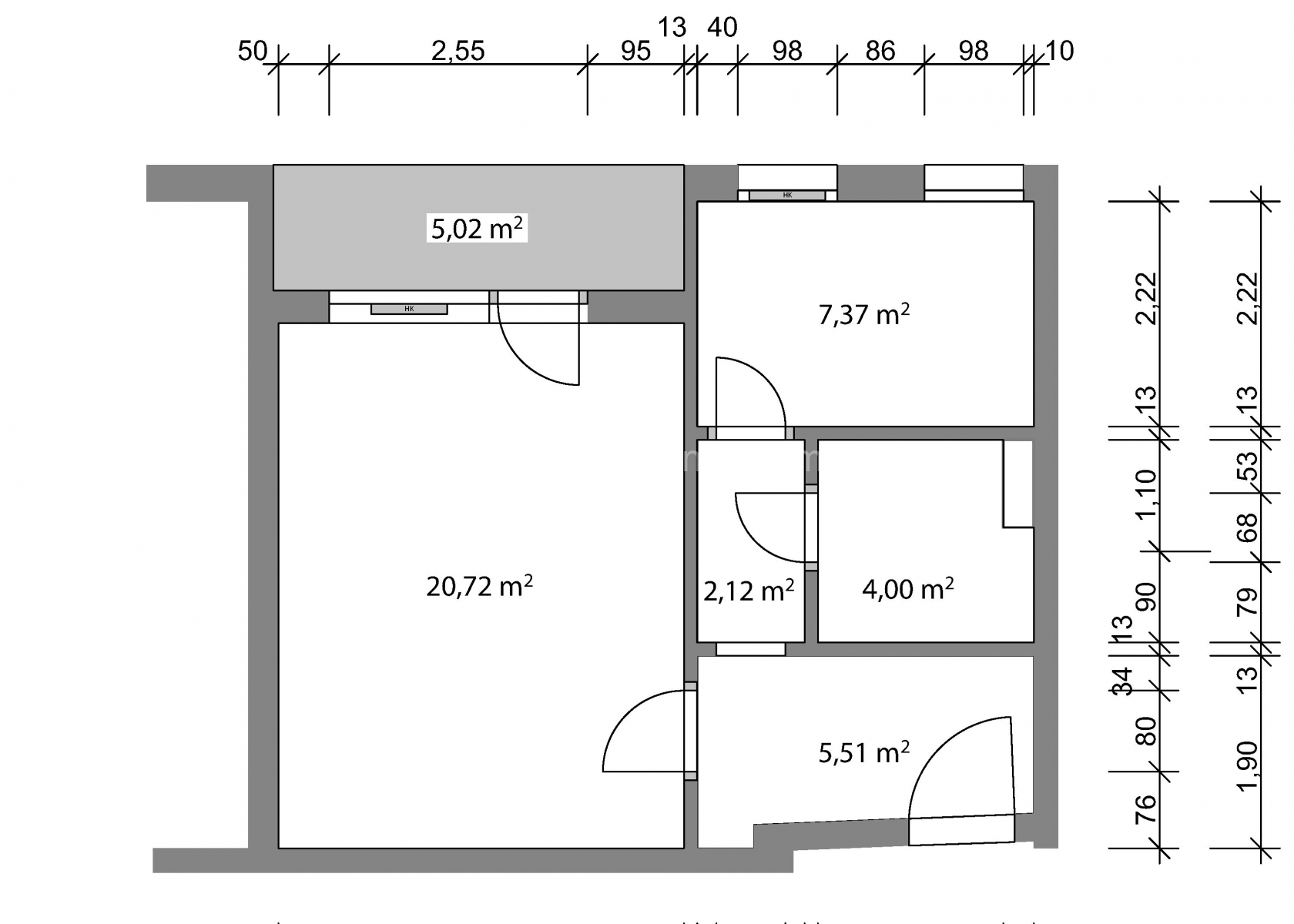
Brun3 Wohnung (2025)

Die 1-Zimmerwohnung im 2. OG des Mehrfamilienhauses musste umfangreich modernisiert werden. Die elektrischen Leitungen wurden auf einen aktuellen Standard gebracht, die Fenster wurden erneuert und auch das Bad brauchte eine generelle Überholung. Bei dieser Gelegenheit konnte der Grundriss so verändert werden, dass im Bad mehr Platz ist und z.B. die eine Waschmaschine dort Platz findet.
Im Wohn-/Schlafraum wurde ein neues Vollholzparkett im Fischgrätmuster verlegt. Die Wohnung hat zusätzlich neue Einbauküche erhalten.