Lehrbienenstand in Südtirol

Die Projektaufgabe: Auf einem unbebauten Grundstück in einem Naturschutzgebiet in Südtirol kann ein Bienenlehrstand von max. 50m² entstehen. An diesem Ort sollen Schüler und Erwachsene geschult und zu Imkern ausgebildet werden.

Gleichzeitig dient das Haus als Standort für eine Bienenstocklufttherapie. So können z.B. Asthma, Allergien und Heuschnupfen durch Sensibilisierung behandelt werden.

Diese Api-Therapie-Inhalation erfolgt über eine oder mehrere Nächte. Der Bienenlehrstand braucht entsprechend Schlafplätze für vier Personen.

Im Team mit Selina Meinert entwickeln wir das Projekt:

Apierio Estivo

Die Basis für den Gebäudekörper bilden die ineinander geschobenen Bienenwaben.
Die Gebäudehülle behält ihre markante, stumpfwinklige Wandführung. Traufseitig folgt das Dach ebenfalls der geometrischen Waben- form als Rhombendodekaeder.

Die markante Fassade aus Holzschindeln schmiegt sich entlang der verwinkelten Wandscheiben als durchlaufen- des Band. Eine parametrische Oberflächengestaltung der Schindeln „schwingt“ auf der Fassade, gleich einer Windböe.
Die Gebäudekonstruktion ist ein Holz- rahmenbau mit Sichtholz an den Innen- wänden und den Innenseiten des Rhomben-Daches.

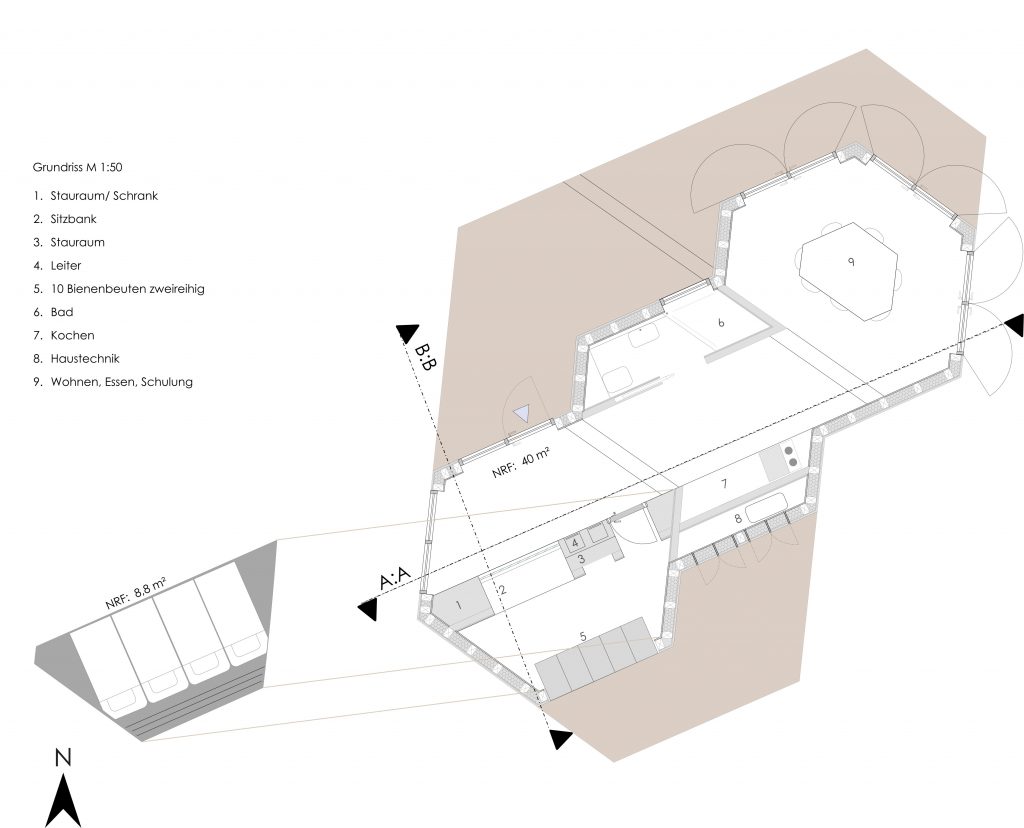
Der Innenbereich des Sommerhauses ist in drei Abschnitte gegliedert. Über eine Glastür betritt man den ersten Abschnitt, welcher die Bienenbeuten beherbergt und wo die Bienen-Lehrveranstaltungen stattfinden. Die
Api-Therapie wird hier praktiziert. Auf einer zweiten Ebene – über den Bienenbeuten – sind vier Schlafplätze angeordnet.
Im mittleren Abschnitt sind die Küche sowie das Duschbad untergebracht.
Der Flur führt zum dritten Abschnitt, dem Wohn- und Essbereich. Hier dominiert im Innenraum ein der Raumgeometrie folgender Esstisch mit bis zu sieben Sitzmöglichkeiten.


Die Panoramafenster öffnen nach außen und lassen so eine uneingeschränkte über drei Wandabschnitte zu. Von dort eröffnen sich Ausblicke hinunter ins Tal, über die nördlichen Gipfelketten bis nach Meran.



Das Grundstück liegt in einem Naturschutzgebiet oberhalb von Schlanders in Südtirol. Über einen Forstweg, der an der oberen Grundstücksgrenze entlang führt ist das Grundstück erreichbar.
Die Hanglage ermöglicht eine stufige Architektur des Gebäudekörpers.



Neben einem Volumenmodell im Maßstab 1:100 (schwarz) haben wir ein weiteres Modell im Maßstab 1:33 mit Hilfe eines 3D Druckers erstellt. Details der Einrichtung, z.B. die Wabenstufen zu den Schlafplätzen über den Bienenbeuten sind im Modell umgesetzt.