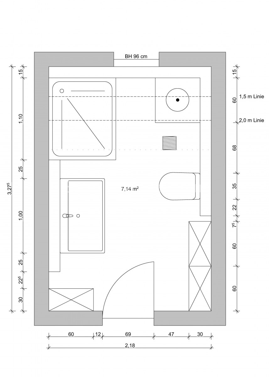
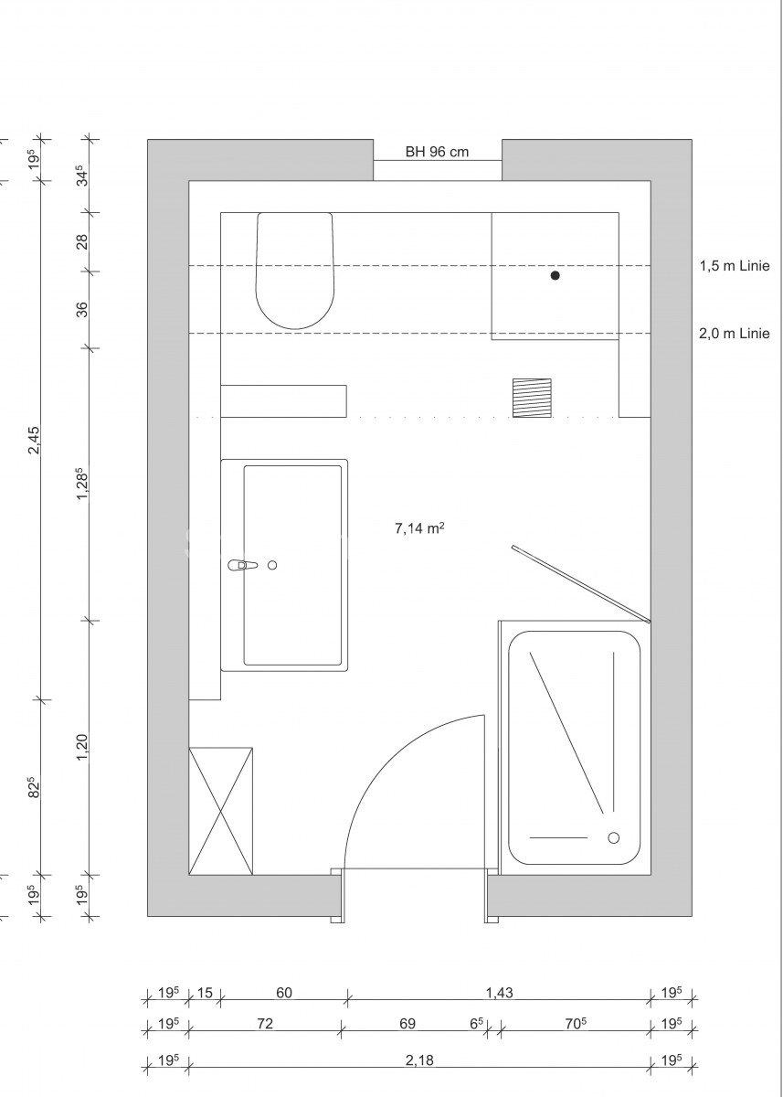
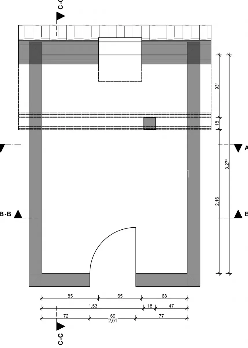
Das Bad im Dachgeschoss sollte erneuert werden. Die Bauherren äußerten den Wunsch, der Dusche mehr Platz zu geben. Bei der Größe des Bads eine Herausforderung, da weiterhin auch die Waschmaschine, die Toilette, ein Waschbecken und Stauraum zur Verfügung stehen soll. Mit einer Reihe von Entwürfen und Farbvorschlägen kam die Planung voran, bis zum vorläufigen Stopp aufgrund von umfangreicheren Renoverungsarbeiten am Dach des Hauses. Inzwischen sind die Modernisierungen am Dach ausgeführt und auch das Bad wurde schließlich erneuert.